Looking for House Plans and Great Home Designs? Find The Perfect Floor Plan Here!
 
 
Our House Plans | Garage Plans | Site Map | Our Policies | Contact Us
 
 


Home Designs
:
House Plans up to 1500 Sq. Ft.
House Plans 1501-3000 Sq. Ft.
Two Story House Plans
Multi Level Home Plans
Garage Plans
Builder's Specials
Ordering Home Designs

Learn More:
How to Read Blueprints
New Home Directory
Learn About Architectural Styles
Home Building Terms Glossary
Why Buy a Stock House Plan?

Help
Questions?
Our Policies
Contact Us
Home

Direct Door Hardware

Door Knobs at Direct Door Hardware

For More House Plans

Click Here!


Looking for Vacation Homes, Cabins,
Victorian Homes, Prairie, Cape Cod,
Bungalow or other house plans and
blueprints for sale? If you don't Find it here, view the house plans at The Plan Collection.

Other House Plan Sites
Home Decorating Sites

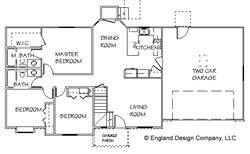
House Plan # R1139
 

Front Elevation
 
Square Footage
Main Level Sq. Ft. 1139
Basement Sq. Ft. 1105
Garage Sq. Ft. 523
Total Living Area 2244
Dimensions
Width 62'5"
Depth 31'6"
Ridge Height  
Room Statistics
Bedrooms 5
Baths 3
Parking Spaces 2
Other Special Feature Rooms:
 
Plan Description
A great started home for the growing family. With three bedrooms and two baths finished and plenty of room in the basment to grow, you'll have all the room you need. This plan has vaulted ceilings in the Living, Kitchen and Dining Room.
House Plan Pricing
Study Set $99
Five Sets of Blueprints $399
Vellum Reproducible $499
House Plan Pricing
Study Set [8.5x11] $99
Five Sets of Blueprints $399
Reproducible Vellums $499
Select a Plan Package
*Cost of a study set can later be applied to a complete package.
Construction Specifications
Primary Roof Pitch 6/12
Secondary None
Exterior Framing 2x4
Vault Locations Formal Living, Kitchen, Dining and Entry
Foundation Type Basement
Exterior Materials Siding, Brick
Roof Framing Trusses
Fireplaces None
 
 
 

Main Floor Plan
   
 

Basement Floor Plan
   
       
         
         
 

All floor plans, renderings and other published content on this site are the property of their respective copyright holders.
Reproduction is strictly prohibited without written consent from the copuright holder. Not all plans published on this site are property of England Design Company
as this site works in collaboration with ThePlanCollection.com or other partners. See more House Plans at The Plan Collection.

Window Coverings, Blinds and Plantation Shutters