Looking for House Plans and Great Home Designs? Find The Perfect Floor Plan Here!
 
 
Our House Plans | Garage Plans | Site Map | Our Policies | Contact Us
 
 


Home Designs
:
House Plans up to 1500 Sq. Ft.
House Plans 1501-3000 Sq. Ft.
Two Story House Plans
Multi Level Home Plans
Garage Plans
Builder's Specials
Ordering Home Designs

Learn More:
How to Read Blueprints
New Home Directory
Learn About Architectural Styles
Home Building Terms Glossary
Why Buy a Stock House Plan?

Help
Questions?
Our Policies
Contact Us
Home

Direct Door Hardware

Door Knobs at Direct Door Hardware

For More House Plans

Click Here!


Looking for Vacation Homes, Cabins,
Victorian Homes, Prairie, Cape Cod,
Bungalow or other house plans and
blueprints for sale? If you don't Find it here, view the house plans at The Plan Collection.

Other House Plan Sites
Home Decorating Sites

House Plan # T2143
 

Front Elevation
 
Square Footage
Main Level Sq. Ft. 1137
Upper Level Sq. Ft. 1228
Garage Sq. Ft. 577
Total Living Area 2365
Dimensions
Width 50'6"
Depth 36"
Ridge Height  
Room Statistics
Bedrooms 4
Baths 2
Parking Spaces 2
Other Special Feature Rooms:
 
Plan Description
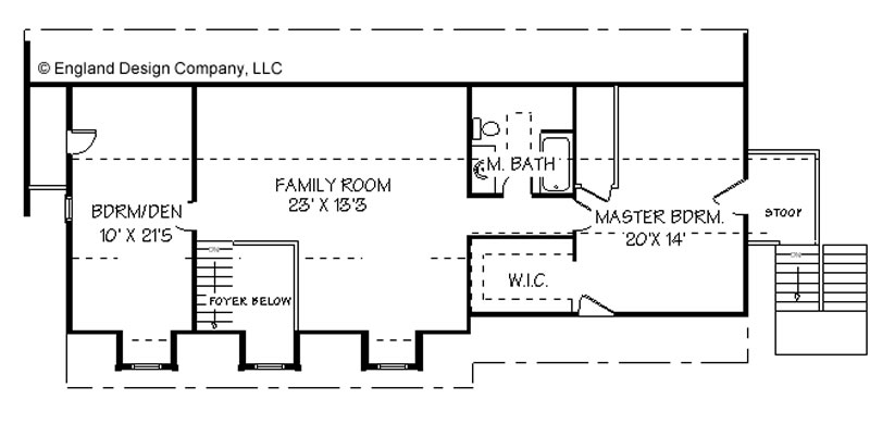
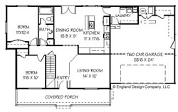
A classic Cape Cod style design. A large family room upstairs with an open railing to the foyer below, Steep vaulted ceilings, and much more make this home fun to live in.
House Plan Pricing
Study Set [8.5x11] $99
Five Sets of Blueprints $499
Reproducible Vellums $599
Select a Plan Package
*Cost of a study set can later be applied to a complete package.
Construction Specifications
Primary Roof Pitch 10/12
Secondary None
Exterior Framing 2x4
Vault Locations None
Foundation Type Slab on Grade
Exterior Materials Siding, Brick
Roof Framing Stick Frame
Fireplaces None
 
 
 

Main Floor Plan
   
 

Upper Level Floor Plan
   
       
         
         
 

All floor plans, renderings and other published content on this site are the property of their respective copyright holders.
Reproduction is strictly prohibited without written consent from the copuright holder. Not all plans published on this site are property of England Design Company
as this site works in collaboration with ThePlanCollection.com or other partners. See more House Plans at The Plan Collection.

Window Coverings, Blinds and Plantation Shutters