Looking for House Plans and Great Home Designs? Find The Perfect Floor Plan Here!
 
 
Our House Plans | Garage Plans | Site Map | Our Policies | Contact Us
 
 


Home Designs
:
House Plans up to 1500 Sq. Ft.
House Plans 1501-3000 Sq. Ft.
Two Story House Plans
Multi Level Home Plans
Garage Plans
Builder's Specials
Ordering Home Designs

Learn More:
How to Read Blueprints
New Home Directory
Learn About Architectural Styles
Home Building Terms Glossary
Why Buy a Stock House Plan?

Help
Questions?
Our Policies
Contact Us
Home

Direct Door Hardware

Door Knobs at Direct Door Hardware

For More House Plans

Click Here!


Looking for Vacation Homes, Cabins,
Victorian Homes, Prairie, Cape Cod,
Bungalow or other house plans and
blueprints for sale? If you don't Find it here, view the house plans at The Plan Collection.

Other House Plan Sites
Home Decorating Sites

House Plan # R1690
 

Front Elevation
 
Square Footage
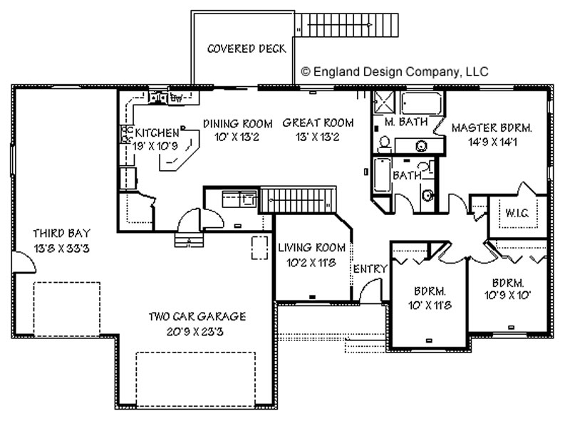
Main Level Sq. Ft. 1690
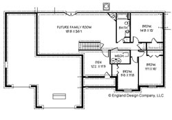
Basement Sq. Ft. 1760
Garage Sq. Ft. 1012
Total Living Area 3450
Dimensions
Width 72.10
Depth

53.8

Ridge Height  
Room Statistics
Bedrooms 6
Baths 3
Parking Spaces 3
Other Special Feature Rooms:
Formal Living Room
Plan Description
This house plan was designed for a walk out basement with the lot sloping to the back of the home, though it would be easily redlined to build without a walkout or different sloping conditions. This is a popular plan with a full master suite, main level laundry and a large kitchen island.
House Plan Pricing
Study Set [8.5x11] $99
Five Sets of Blueprints $599
Reproducible Vellums $749
Select a Plan Package
*Cost of a study set can later be applied to a complete package.
Construction Specifications
Primary Roof Pitch 6/12
Secondary None
Exterior Framing 2x6
Vault Locations Great room, Kitchen, Dining, Entry and Formal Living
Foundation Type Basement
Exterior Materials Brick
Roof Framing Trusses
Fireplaces Great Room, Bsmnt Family Room
 
 
 

Main Floor Plan
   
 
   
       
         
         
 

All floor plans, renderings and other published content on this site are the property of their respective copyright holders.
Reproduction is strictly prohibited without written consent from the copuright holder. Not all plans published on this site are property of England Design Company
as this site works in collaboration with ThePlanCollection.com or other partners. See more House Plans at The Plan Collection.

Window Coverings, Blinds and Plantation Shutters